VÝRAZNE ZNÍŽENÁ CENA
5-IZBOVÝ RODINNÝ DOM HONTIANSKE MORAVCE
5-IZBOVÝ RODINNÝ DOM HONTIANSKE MORAVCE
Realitná kancelária HQ Business ponúka exkluzívne na predaj priestranný 5-izbový rodinný dom s letnou kuchyňou v tichej obci Hontianske Moravce, len pár minút od kúpeľného mesta Dudince. Rodinný dom sa nachádza na veľkom rovinnatom pozemku o celkovej výmere 2749 m2
Dom prechádza od konca r. 2022 kompletnou rekonštrukciou interiéru – nové rozvody (elektrina, voda, plyn, kanalizácia), radiátory, plastové okná, vchodové dvere, sadrokartónové stropy, nové povrchy stien.
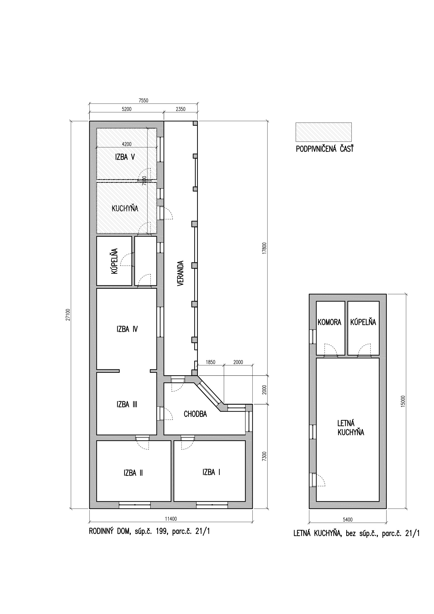
Dispozícia:
Rodinný dom:
Letná Kuchyňa
Vybavenie a technický stav:
Názor makléra:
Dom pôsobí priestranne, prešiel dôležitou rekonštrukciou a ponúka veľmi veľký pozemok vhodný pre rodinu aj hobby alebo iné aktivity.
Dom je ihneď k dispozícii – po drobných úpravách ponúka novému majiteľovi okamžité nasťahovanie a komfortné bývanie.
V cene je zahrnuté:

Vo svete financií pôsobím od roku 2014. Po rokoch intenzívnej práce s klientmi som v roku 2023 rozšíril svoje pôsobenie aj do oblasti realít a založili sme značku HQ Business.
„Kombinácia odbornosti, skúseností a férového prístupu je pre mňa základom kvalitnej služby a poskytovania riešení šitých na mieru – či už ide o finančné plánovanie, kúpu alebo predaj nehnuteľnosti.“